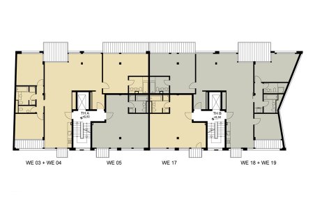
2. Obergeschoss
2 Lofts und 2 Studios
Variante 3
Auf Wunsch können die Einheiten WE 03 und WE 04 (ca. 175 m²) und die Einheiten WE 18 und WE 19 (ca. 181,70 m²) zusammengelegt werden.
Die WE 03 + WE 04 und die WE 18 + WE 19 sind als 4-Zimmerwohnungen geplant.
Die WE 05 und die WE 07 sind als 1-Zimmerwohnung geplant

