Kellergeschoss
Tiefgarage und Nebenräume
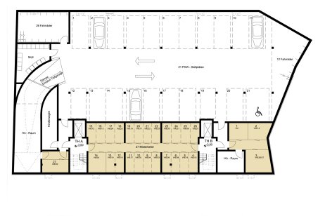
Neben der Haupterschließung aus dem Erdgeschoss sind die Wohnungen auch direkt mit den Aufzügen aus der Tiefgarage erreichbar.
Die geplanten 21 KFZ-Stellplätze in der Tiefgarage können erworben werden.
Nebenräume für Hausanschluß, Technik, Müllboxen, Fahrräder und Kinderwagen sowie den Mieterkellern für jede Wohneinheit bilden die weiteren Nutzungen im Kellergeschoss.

