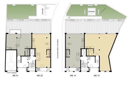
Erdgeschoss
3 Maisonetten und 1 Loft
Die Einheiten im EG verfügen über eine großzügige Terrasse und einen Zugang zum Garten und erhalten dort Anteile an der Grünfläche als Sondernutzungsfläche.
Die WE 01, WE 02 und WE 14 entwickeln sich als Maisonetten über EG und 1.OG (von ca. 145,80 m² bis ca. 150,90 m²).
Die WE 15 ist als Loft im EG geplant (ca. 98,90 m²), ist aber ebenfalls über den Zukauf der darüber liegenden Wohnung im 1. Obergeschoss zweigeschossig erweiterbar.

